New Hey Road, Huddersfield, HD3
Description
Harvey and Ryall are pleased to offer this spacious cottage 3-bedroom terraced house located in Outlane village.
Spacious Lounge & Dining Areas 3 Double Bedrooms Large Dining/Kitchen Council Tax Band A Great links to M62
Situated on New Hey Road this property is located near the M62 motorway (Junction 23). The property briefly comprises of an entrance leading into a porch for coat and boot storage, spacious lounge with feature beams throughout, large modern kitchen. Upstairs there are 3 good sized bedrooms and a modern family bathroom with additional built in strange in the landing.
Key property details
Windows & Doors UPVC Double Glazed
Heating powered by Gas Central Heating
Accommodation Listing:
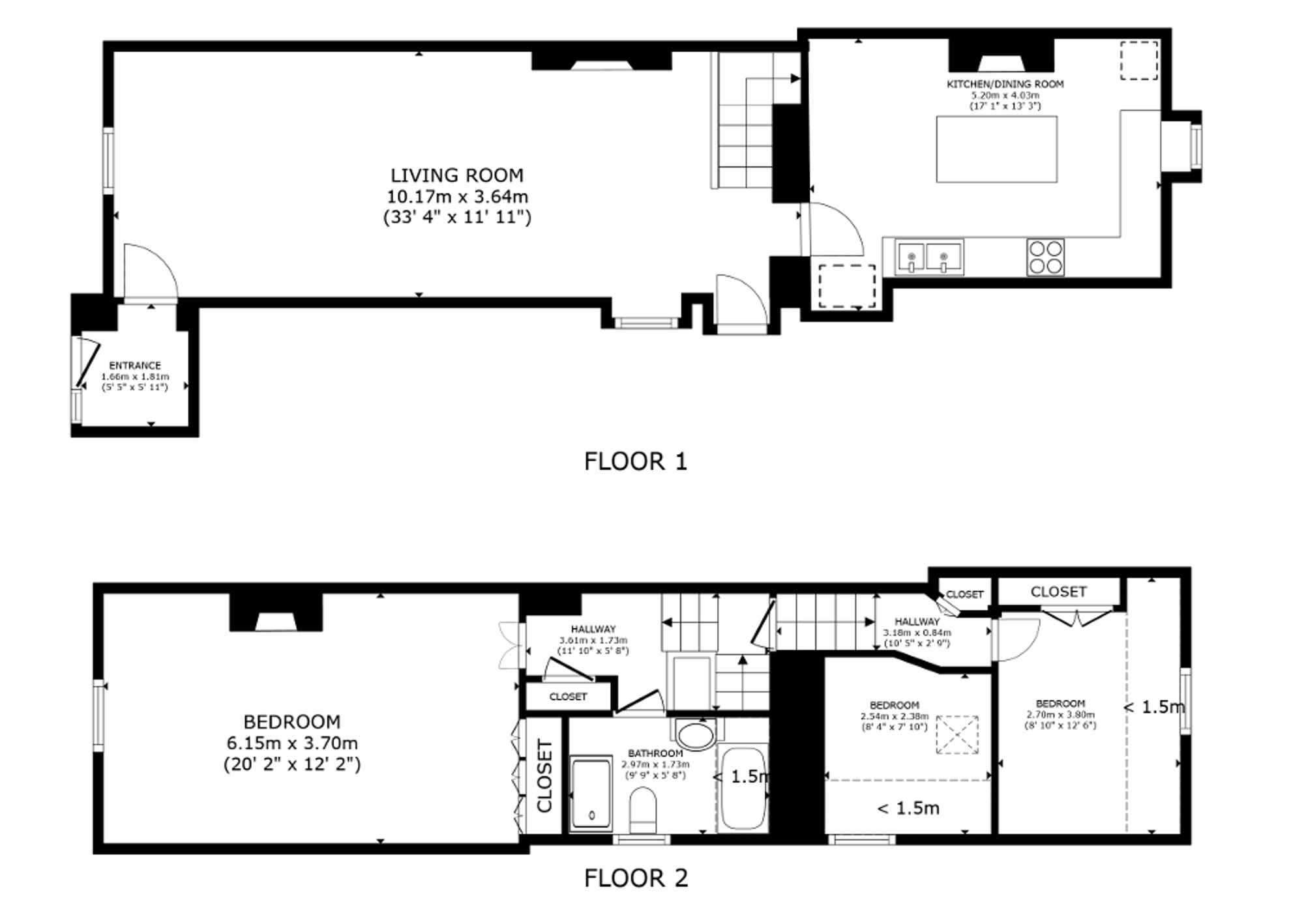
Ground Floor
Entrance Vestibule Entrance: Front door leading into a handy porch with coat and boot storage
Lounge Spacious reception area with carpeted flooring and warmed by wall mounted radiators. Benefiting from a beamed ceiling and original fireplace. This lounge is filled with character.
Kitchen Spacious kitchen area fitted with a range of base and wall units, wooden effect work surfaces and tiled splash back. Integrated oven and hob, fridge freezer, washing machine. Sink unit with drainer and mixer tap, tiled flooring and a breakfast bar.
First Floor
Landing Two built in cupboards for additional storage.
Bedroom 1 (front) Generous large master bedroom benefiting from carpeted flooring and warmed by central heating radiator. There is built in wall-to-wall wardrobe/ storage in addition to a ceiling to floor mirror fixed to the wall. Double glazed window to the front.
Bedroom 2 (rear) Double Bedroom benefiting from carpeted flooring and warmed by central heating radiators, double glazed windows to the rear.
Bedroom 3 (rear) Good sized single bedroom, benefiting from carpeted flooring and warmed by central heating radiators with a skylight window.
Bathroom (front) Good sized modern bathroom comprising of full-size bath, separate walk in shower, low flush WC and wash hand basin with a shelf for additional storage.
Parking Arrangements On street parking.
Outside Space None allocated.
Council Tax Band - B
Energy Performance Rating - D
Mains Gas - Yes
Mains Electricity - Yes
Mains Water - Yes
What 3 Words location - ///bigger.boxer.cuts
Viewing - By appointment with Harvey & Ryall
Additional Details
Talk about the area (anything local that’s handy or close etc)
- 0.6 miles from M62 Junction 23
- 4.0 miles from Huddersfield Town Centre
- 5.9 miles from Halifax Town Centre
This property is marketed and listed by Harvey & Ryall.
Check out our 5 star google reviews!
Please contact us to arrange a viewing or your own market appraisal
Harvey & Ryall work in partnership with local trusted Solicitors & Mortgage advisors. Please contact us for more information.
Mortgage Advice - 100% free with no obligation mortgage advice appointment with one of our partners. YOUR HOME IS AT RISK IF YOU DO NOT KEEP UP REPAYMENTS ON A MORTGAGE OR OTHER LOAN SECURED ON IT.
Solicitors - Conveyancing quotation with one of our partners.
Property Information
- Property Type: House
- Bedrooms: 3
- Bathrooms: 1
- Receptions: 1
- Tenure: Freehold
- Council Tax Band: B
Enquire about this Property
* Indicates the form field needs to be filled in by you
Book your free market appraisal
Get a FREE no-obligation market appraisal of your property.
Latest News

Getting your rental property ready for winter! 10 top tips!
Broken boilers, burst pipes, and poorly insulated homes can make being a landlord challenging in winter. And not only are these things costly to resolve, they can make your tenants’ lives extremely difficult too. But if you address these issues early, you can avoid major issues down the road.[more]

Cut through the Jargon!
Here is a simple handy guide to all the jargon that vendors, purchasers and the wider property community may use to get you into a spin! [more]

New energy efficiency rules for rental properties scrapped
Landlords will no longer be required to improve the energy efficiency of their rental properties as the government has scrapped plans to introduce new minimum standards.[more]

Stamp Duty Land Tax SDLT explained!
Understand Stamp Duty Land Tax SDLT when looking to buy a property! Here is your guide.[more]
Want to buy a home? Where should we start?
Some handy tips to get started when looking for your new home![more]

History of Slaithwaite
The area in which we live & love! Slaithwaite has been our home and an area we work closely for many years![more]
What steps to take if your house needs work?
Here we have some handy tips on how to help find the best trades for the job and employ the best in the business![more]





















