Larch Close, Wheatley, HX2
Description
This three-bedroom family home features spacious reception rooms, including a large kitchen/diner, perfect for both family life and entertaining. The property offers a lovely rear garden with views over the fields, adding a peaceful touch. A driveway provides convenient off-road parking, completing this charming home.
Key property details
Windows & Doors - UPVC Double Glazed
Heating powered by - Gas Central Heating
Accommodation Listing:
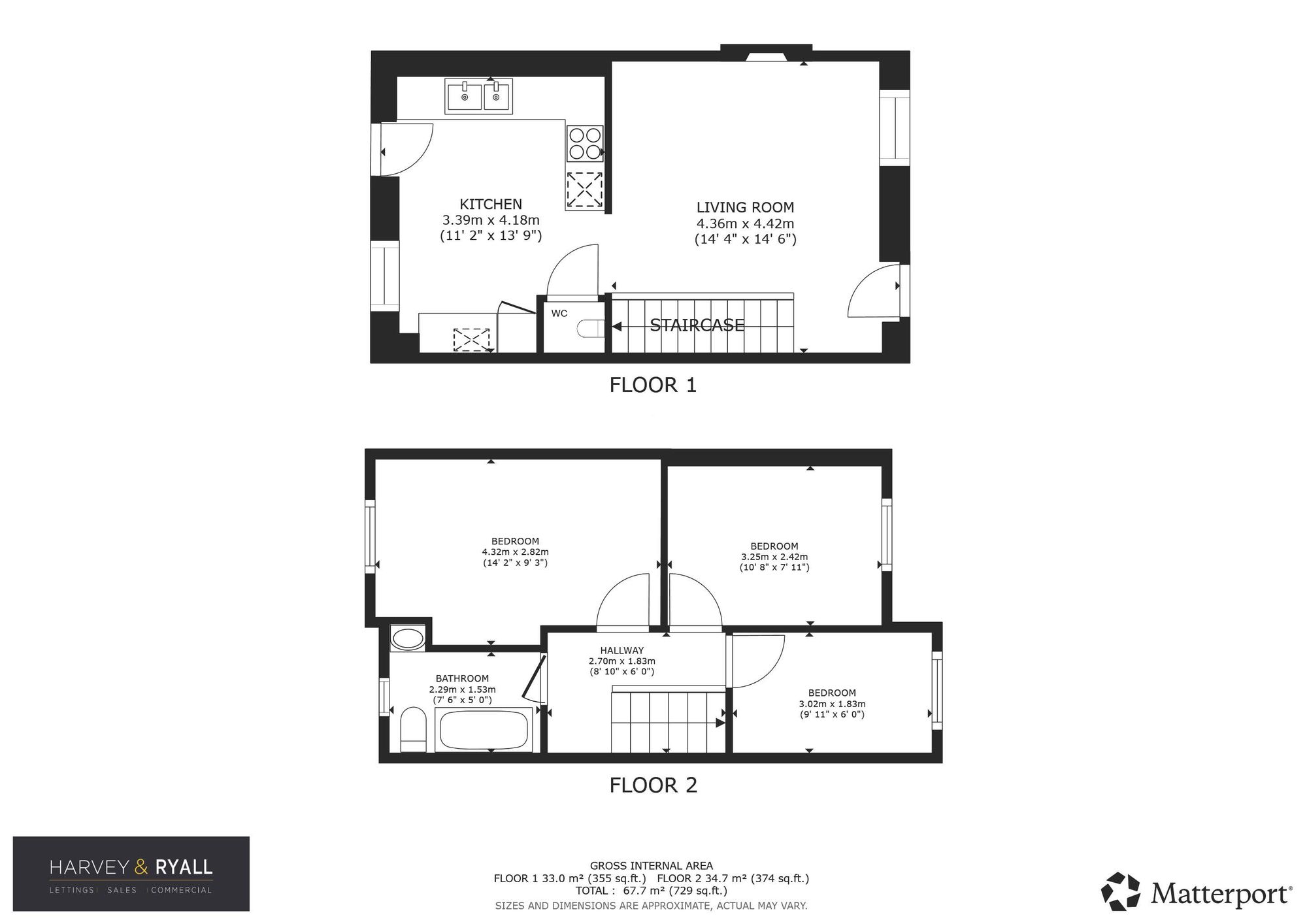
Ground Floor
Lounge 4.42m x 4.36m - This bright lounge offers a spacious, practical layout with wood-effect flooring and a neutral colour scheme, making it easy to personalise. A large window and open connection to the adjoining room allow for plenty of natural light. The room also includes a built-in electric fireplace and wall-mounted shelf, adding functionality and a modern finish.
WC – Handy downstairs WC located under the stairs, located from the kitchen.
Kitchen/Dining Room 4.18m x 3.39m - This kitchen offers a modern layout with ample worktop space and sleek, neutral cabinets. Black tile splashbacks contrast nicely with light units, while a built-in double oven, 4-ring hob and extractor add to the functionality. The room benefits from a practical tiled floor and good natural light from the window. There's space for a dining table, making it a versatile area for both cooking and eating. A wide doorway connects the kitchen to the living area, creating an open and sociable flow through the home.
First Floor
Landing 2.70m x 1.83m - Carpeted landing providing access to the family bathroom, all bedrooms, and stairs leading to the ground floor.
Family Bathroom 2.29m x 1.53m - Stylishly presented family bathroom featuring contemporary grey wall and floor tiles for a sleek, modern look. The suite includes a full-sized bathtub, low flush WC, wash basin with under-sink storage, and a chrome heated towel rail for added comfort and practicality.
Master Bedroom 4.32m x 2.82m - This well-proportioned double bedroom features a large window, cosy carpeting, and a radiator for added comfort.
Bedroom 2 3.25m x 2.42m - This bright double room is ideal as a children's bedroom, featuring soft carpeting and a radiator with a stylish cover.
Bedroom 3 3.02m x 1.83m - This cosy single bedroom is fully carpeted and ideal as a children's room or a comfortable home office.
Parking Arrangements - Driveway to the front of the property.
Outside Space - The rear garden offers side views over open fields, featuring a raised decking area for seating and a well-maintained lawn, perfect for relaxing or entertaining.
Tenure - Freehold
Council Tax Band - B
Energy Performance Rating - B
Mains Gas - Yes
Mains Electricity - Yes
Mains Water - Yes
Viewing - By appointment with Harvey & Ryall
What 3 Words location - ///agree.local.range
Boundaries & Ownerships - All prospective purchasers should make their own enquiries before proceeding to exchange of contracts to check the title deeds for any discrepancies of boundaries or rights of way. If you would like any more information of the subject, please contact us where we would be happy to discuss.
Additional Details
Plenty of local amenities in the local village, food, shops, and schools all in the area.
- 2.4 miles from Halifax Centre
- 3.0 miles from The Piece Hall
- 3.5 miles from Calderdale Royal Hospital
Please contact us to arrange a viewing or your own market appraisal
This property is marketed and listed by Harvey & Ryall
Harvey & Ryall work in partnership with local trusted Solicitors & Mortgage advisors. Please contact us for more information.
Mortgage Advice - 100% free with no obligation mortgage advice appointment with one of our partners. YOUR HOME IS AT RISK IF YOU DO NOT KEEP UP REPAYMENTS ON A MORTGAGE OR OTHER LOAN SECURED ON IT.
Solicitors - Conveyancing quotation with one of our partners.
Property Information
- Property Type: House
- Property Age Bracket: 2000s
- Bedrooms: 3
- Bathrooms: 2
- Receptions: 2
- Tenure: Freehold
- Council Tax Band: B
Enquire about this Property
* Indicates the form field needs to be filled in by you
Nearby Properties
Book your free market appraisal
Get a FREE no-obligation market appraisal of your property.
Latest News

Getting your rental property ready for winter! 10 top tips!
Broken boilers, burst pipes, and poorly insulated homes can make being a landlord challenging in winter. And not only are these things costly to resolve, they can make your tenants’ lives extremely difficult too. But if you address these issues early, you can avoid major issues down the road.[more]

Cut through the Jargon!
Here is a simple handy guide to all the jargon that vendors, purchasers and the wider property community may use to get you into a spin! [more]

New energy efficiency rules for rental properties scrapped
Landlords will no longer be required to improve the energy efficiency of their rental properties as the government has scrapped plans to introduce new minimum standards.[more]

Stamp Duty Land Tax SDLT explained!
Understand Stamp Duty Land Tax SDLT when looking to buy a property! Here is your guide.[more]
Want to buy a home? Where should we start?
Some handy tips to get started when looking for your new home![more]

History of Slaithwaite
The area in which we live & love! Slaithwaite has been our home and an area we work closely for many years![more]
What steps to take if your house needs work?
Here we have some handy tips on how to help find the best trades for the job and employ the best in the business![more]























